Drift Road, Fareham

Project Highlights

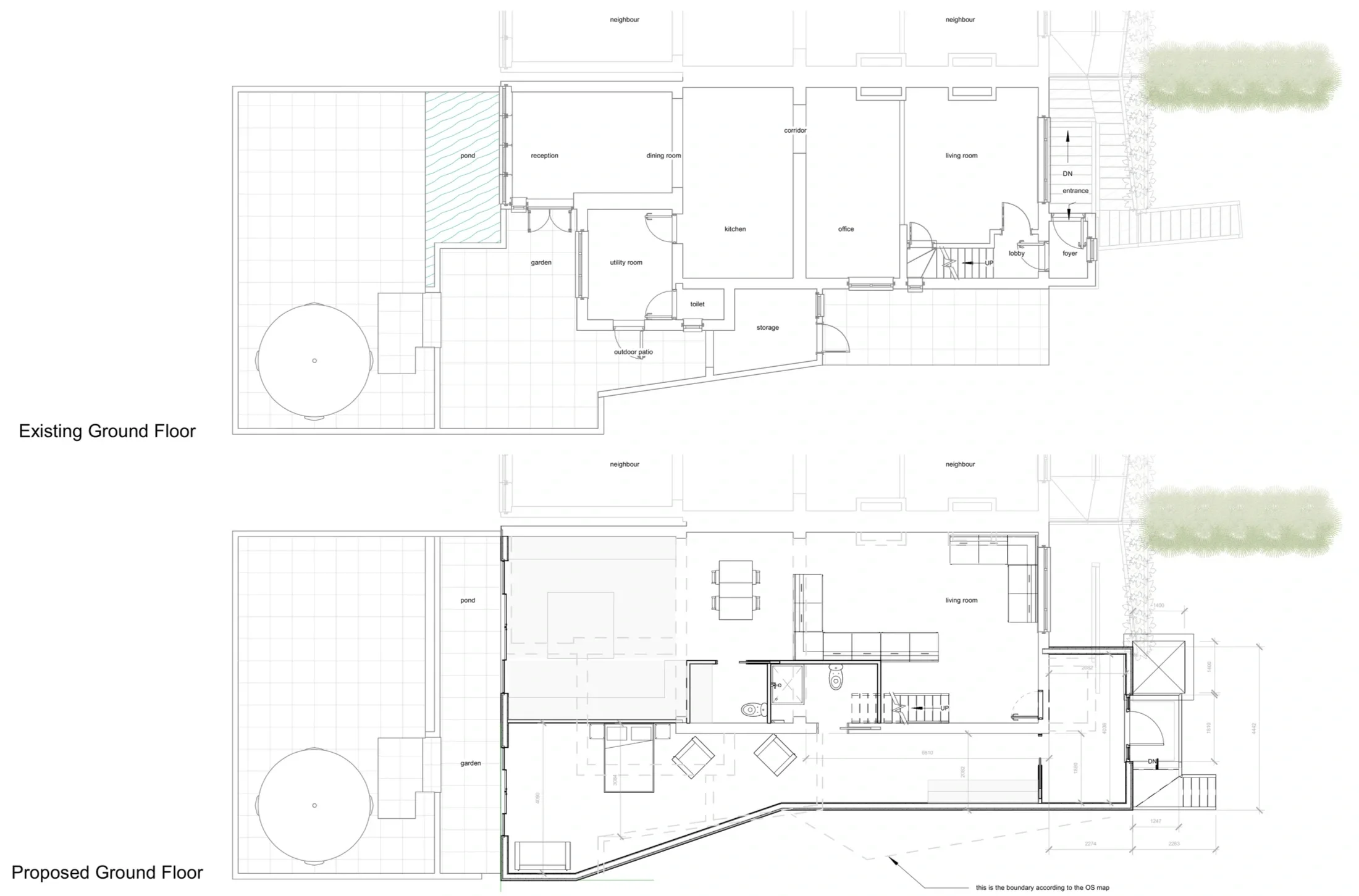
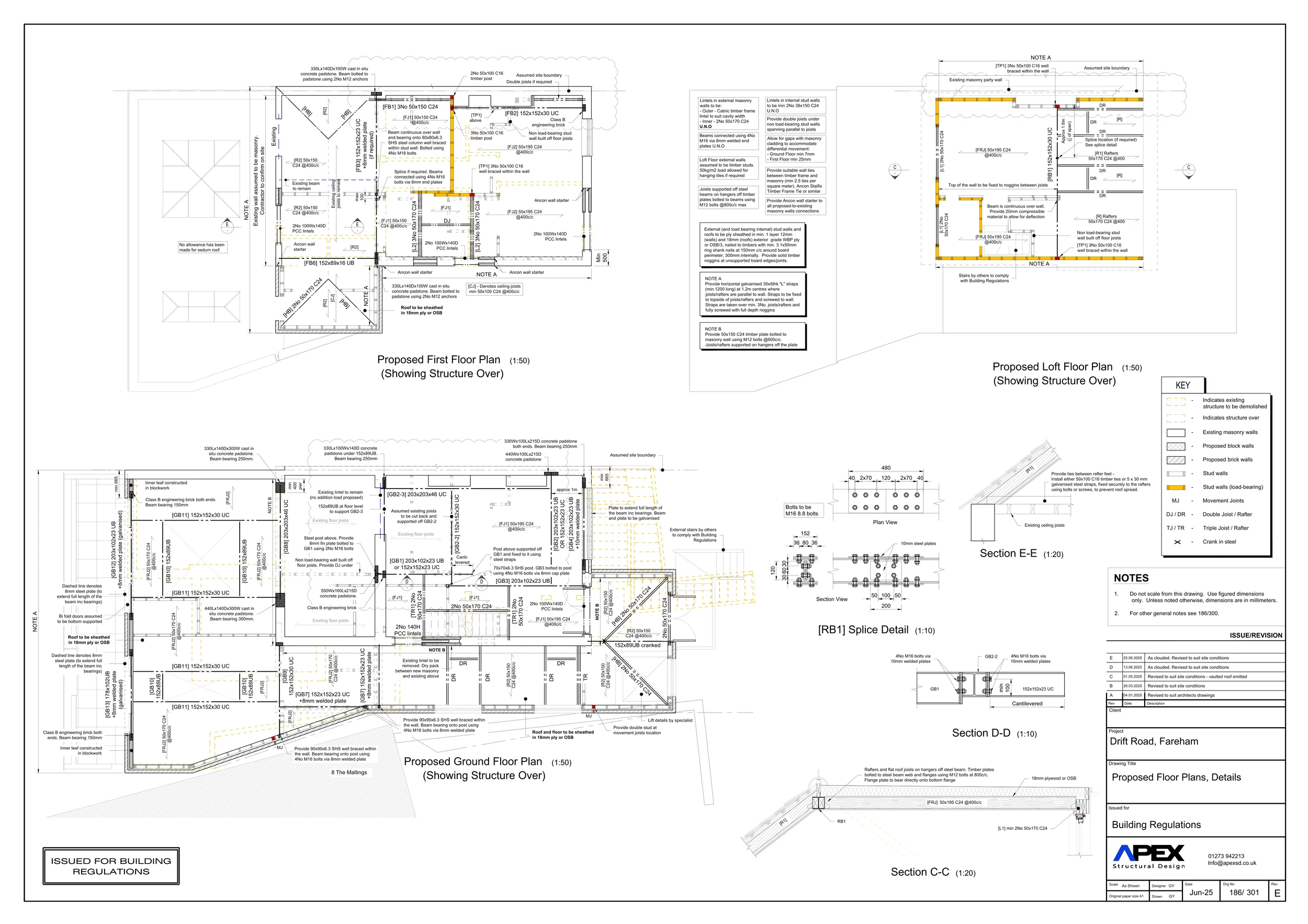
Comprehensive structural redesign of a semi-detached three-storey property, including a new rear extension. The scheme introduced new steel framing and altered floor layouts to create open living spaces, while strengthening and integrating the existing structure to suit the updated architectural design.

Previous
Previous

Garthorne Road, London

Next
Next

Emlyn Road, London