Glentham Gardens, London

Project Highlights

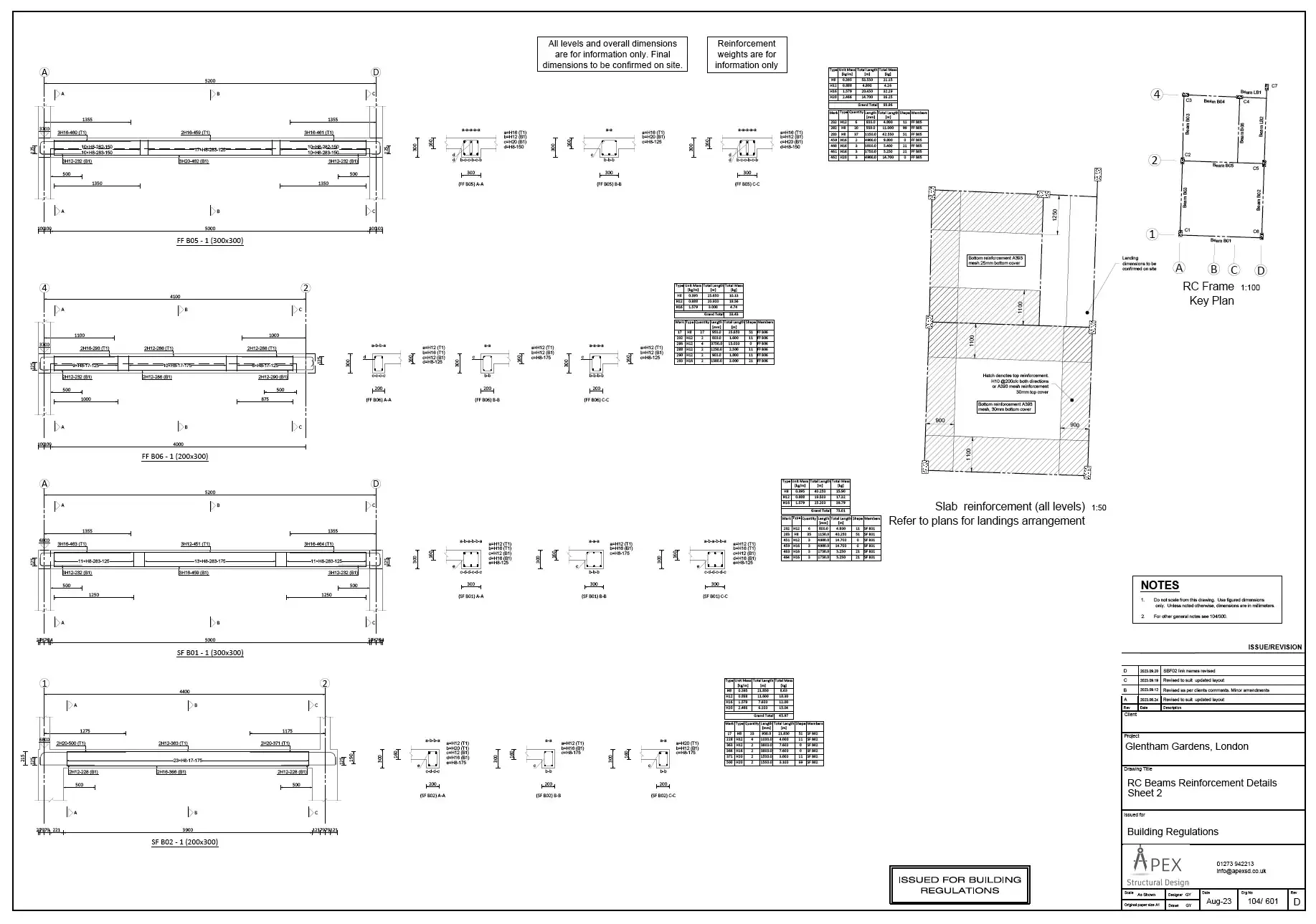
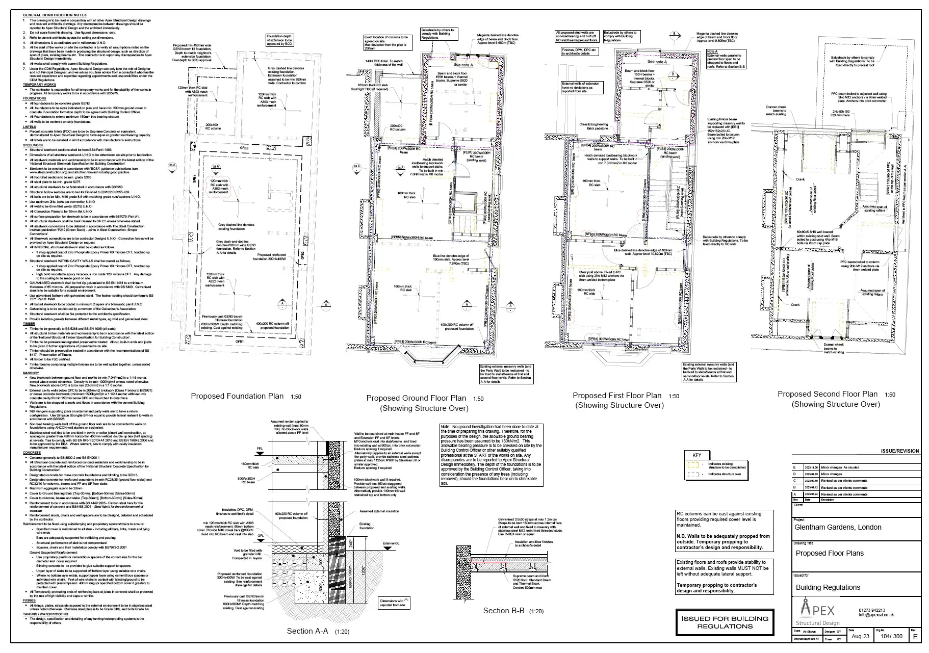
Full structural refurbishment and strengthening of an existing end-terraced property. The works included the introduction of a new in-situ reinforced concrete frame to support extensive internal reconfiguration and floor removal.

Previous
Previous

Pier Road, Littlehampton