Pier Road, Littlehampton

Project Highlights

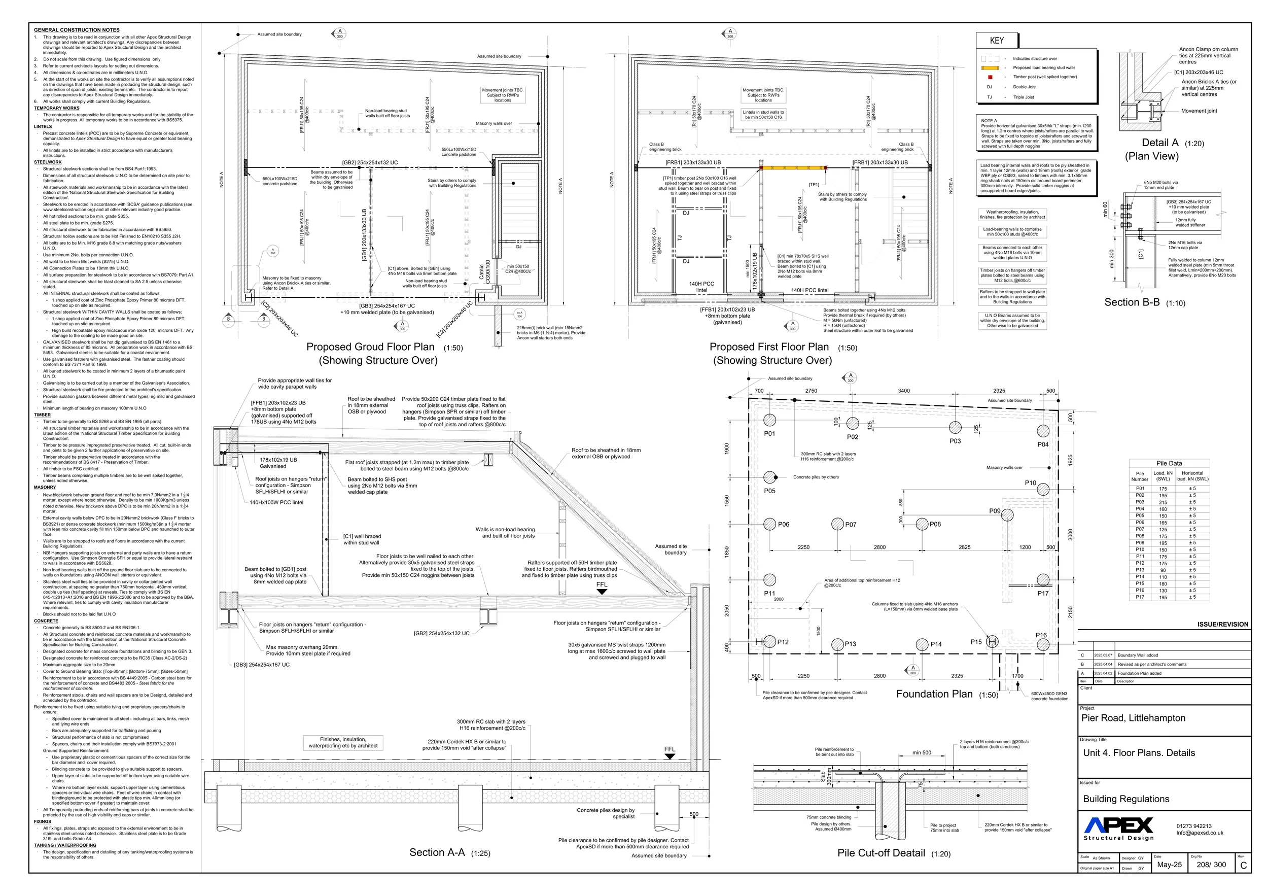
Redevelopment of a brownfield site involving the demolition of two existing commercial buildings and construction of two new residential blocks of flats on the seafront. The superstructure comprised load-bearing masonry with integrated steel beams and columns to provide open layouts and coastal wind stability. The commission also included the below-ground foul and surface water drainage design, incorporating an attenuation chamber to manage stormwater discharge in accordance with local authority and Southern Water requirements.

Previous
Previous

Mayfield Lane, Wadhurst

Next
Next

Glentham Gardens, London