Guildford Road, Chertsey
Project Highlights
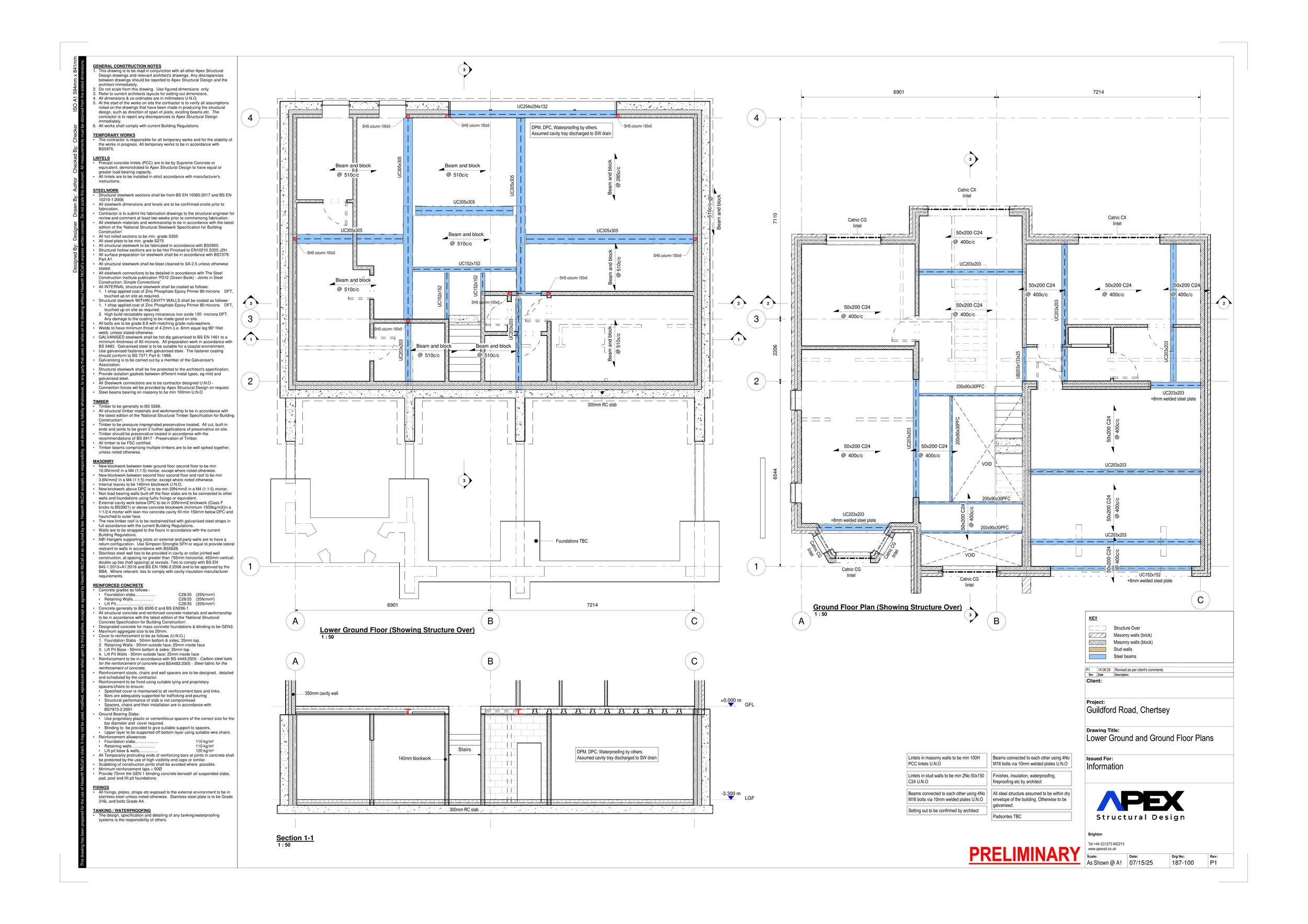
Design of a new three-storey dwelling constructed on a steeply sloping site following demolition of the existing house. The scheme incorporates a reinforced concrete basement formed into the slope, with load-bearing masonry walls and a combination of steel beams and posts at upper levels to achieve open-plan living areas and efficient structural performance.
 
          
          
        
       
          
          
        
       
          
          
        
       
          
          
        
      