Holland Villas Road, London

Project Highlights

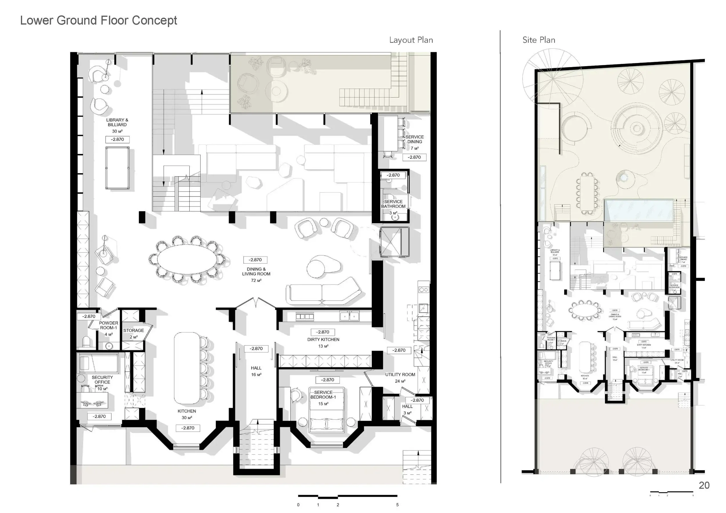
Structural design and construction methodology for a five-storey Victorian property with a new single-storey basement and major structural alterations. The scheme included underpinning design, temporary works sequencing, and coordination with adjoining properties.

Previous
Previous

Oxford Gate, Brook Green, London

Next
Next

Guildford Road, Chertsey