Meadow Lane, Edenbridge

Project Highlights

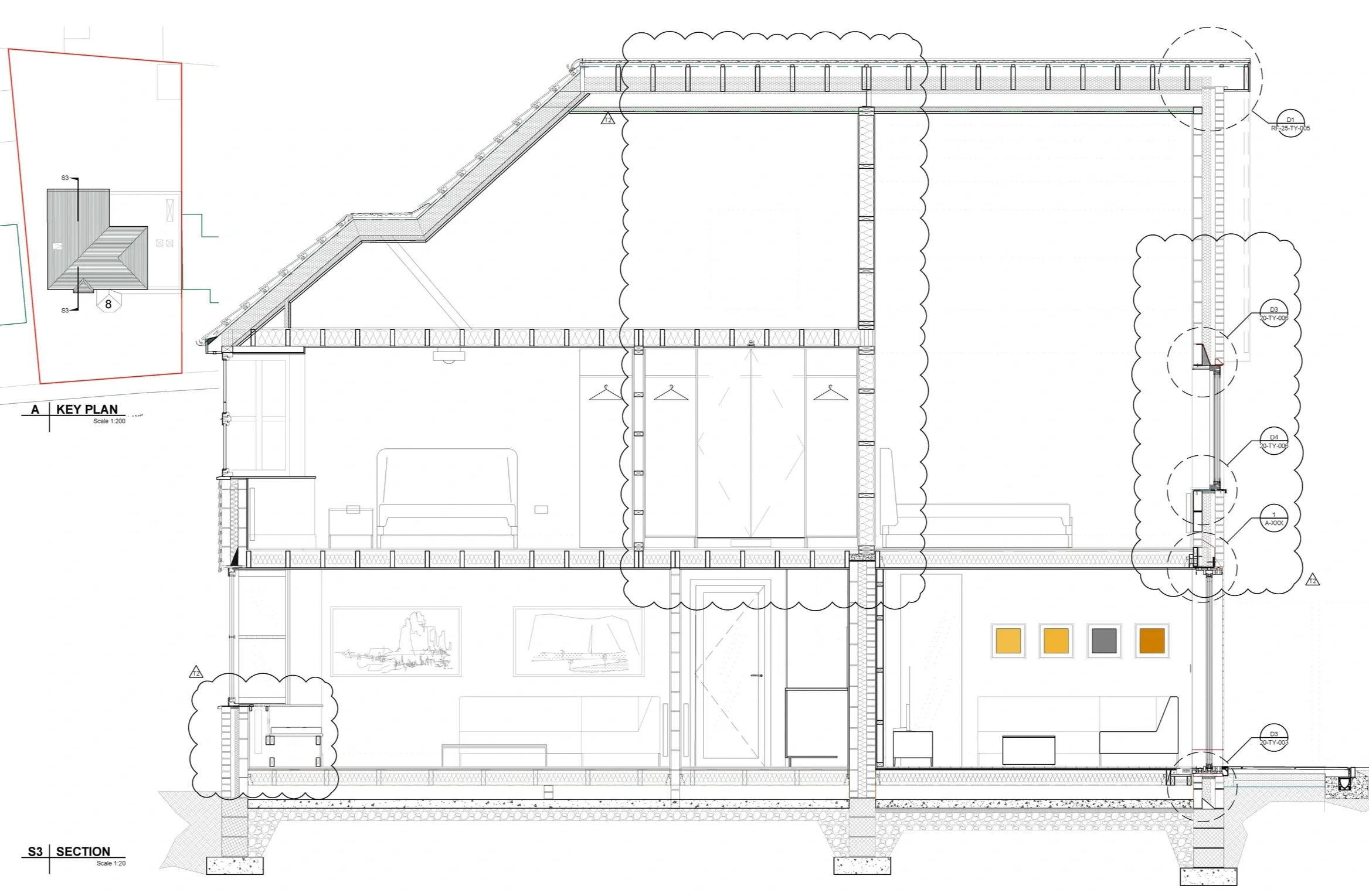
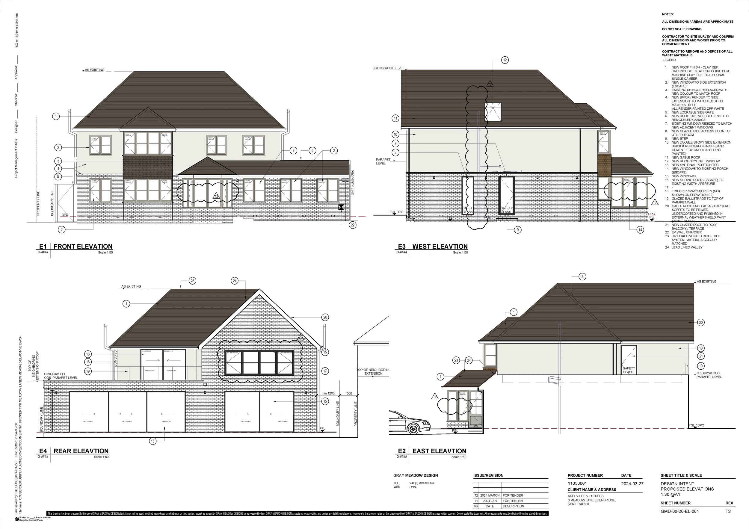
Extensive remodelling of a two-storey detached house, including new rear and side extensions. The project involved reconfiguring the existing structure, introducing new steel and timber framing, and creating open-plan living spaces with large glazed openings to enhance light and connectivity to the garden.

Previous
Previous

Swimming Pool, Shernden Lane, Edenbridge

Next
Next

Garthorne Road, London