Shernden Lane, Edenbridge

Project Highlights

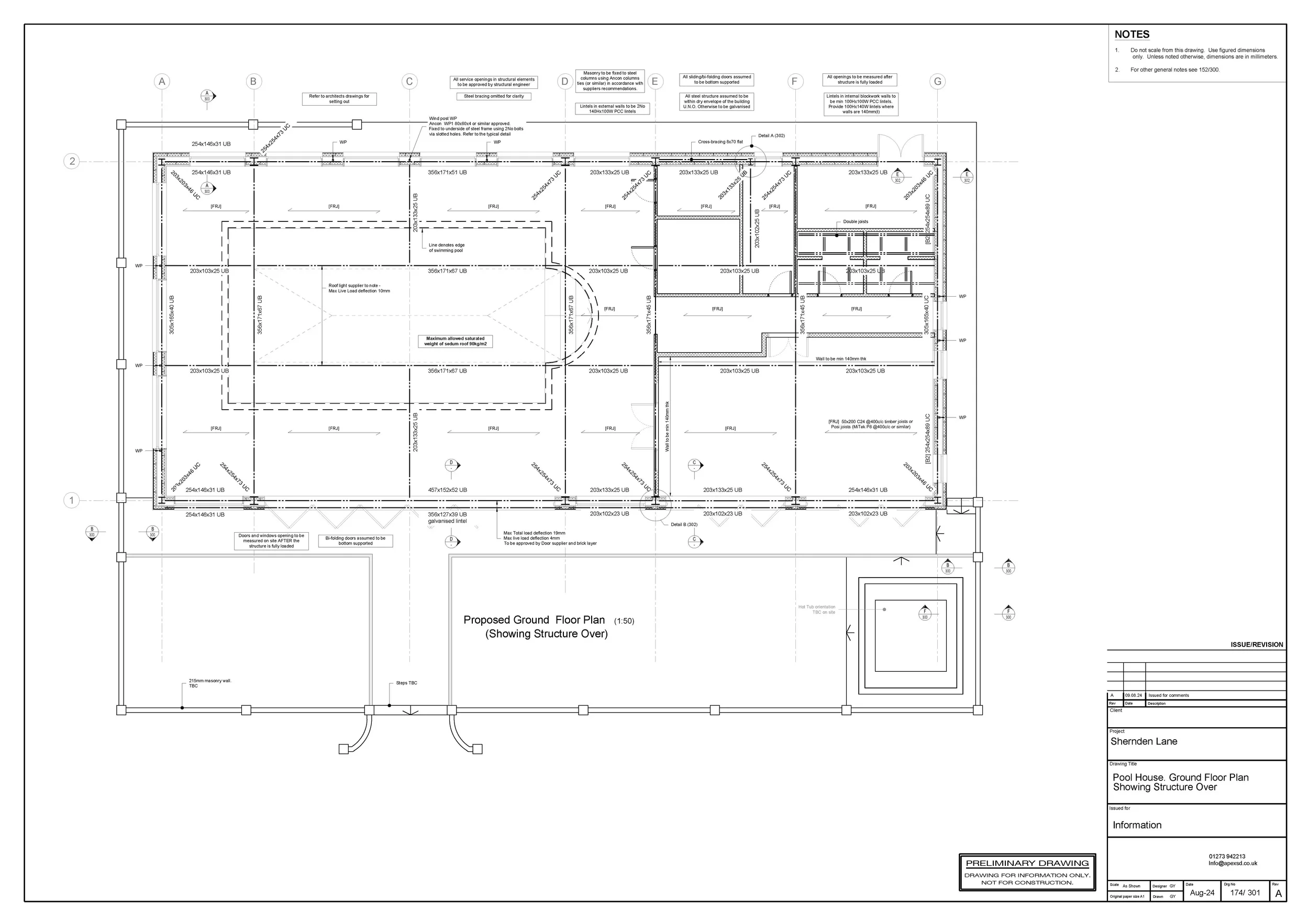
Design of a new steel-framed pool building featuring large-span bifolding doors opening onto a landscaped terrace. The structure provides a light, open interior with concealed steelwork to support wide glazed elevations and roof spans, seamlessly connecting the indoor pool with the surrounding garden.

Previous
Previous

Arundel Drive East, Saltdean

Next
Next

Meadow Lane, Edenbridge