Mayfield Lane, Wadhurst

Project Highlights

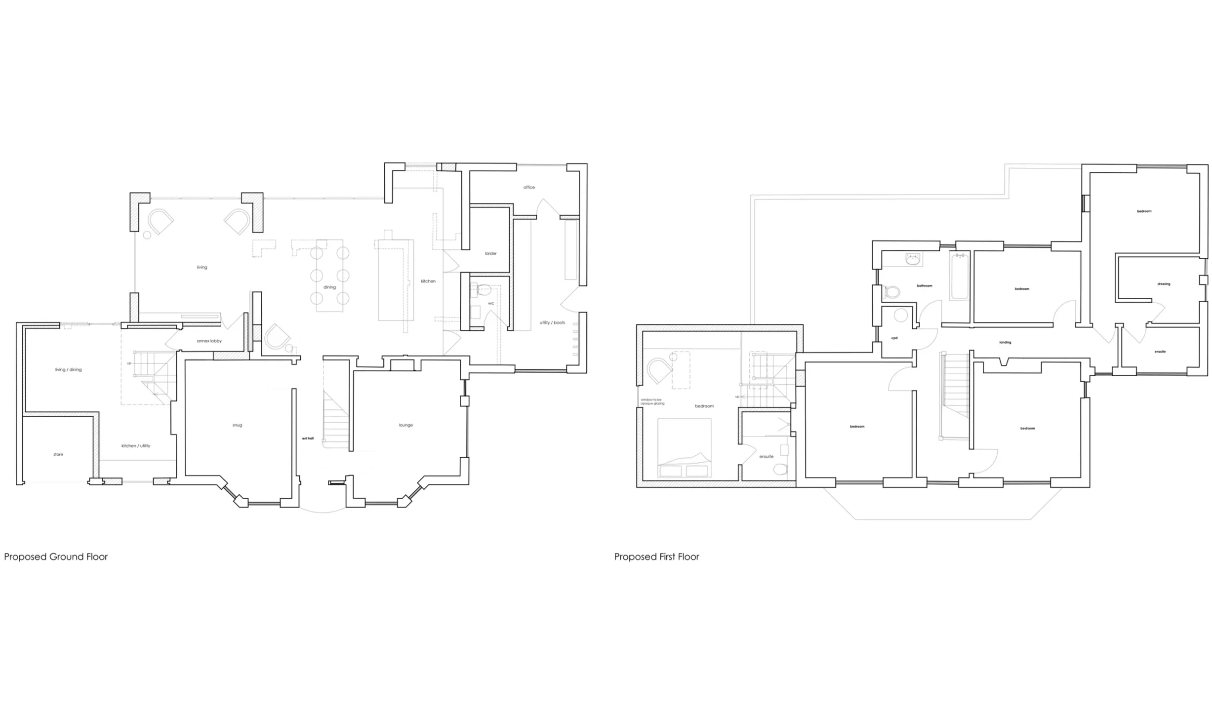
Structural design for a rear extension to an existing two-storey detached house, utilising load-bearing masonry with integrated steel beams and columns to achieve open-plan spaces. The project required careful assessment of ground stability due to an existing pond located close to the foundation line, including slope stability analysis to ensure long-term structural safety.

Previous
Previous

Emlyn Road, London

Next
Next

Pier Road, Littlehampton